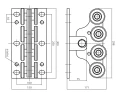
Juoksukärry 89x100 mm kiskoon 6V.089 liukuportti 8 teräsrullaa
tuote ei saatavilla
lisää toivelistalle
Kuvaus
8-rullinen keinuva liukukärryt liukuportille – teräsrullat
8-rullinen keinuva liukukärryt on kestävä ohjauselementti kiskollisille liukuporteille, yhteensopiva 6V.089-kiskon kanssa. Monilevyinen keskirakenne tarjoaa lisääntyneen kantavuuden ja vakaan toiminnan, ja teräsrullat takaavat portinsiiven sujuvan ohjauksen vuosikausien käytön ajan.

Tuotteen keskeiset ominaisuudet
- Tyyppi: keinuva liukukärryt
- Rullien lukumäärä: 8
- Rullien materiaali: teräs
- Yhteensopivuus: 6V.089-kisko
- Rakenne: monilevyinen (lisääntynyt kestävyys)
- Asennusalusta rei'illä: 4× M16
- Paino: 11,3 kg
- Korkeus (H): 169 mm

Kestävyyttä ja luotettavuutta vuosiksi
Kärryt erottuvat korkealla mekaanisella kestävyydellä ja dynaamisella kuormituksenkestolla. Monilevyinen keskelementti vähentää muodonmuutoksia suuressa paineessa, mikä takaa vakaan ohjauksen jopa raskaiden portinsiipien kanssa. Laakereihin asennetut teräsrullat takaavat hiljaisen ja sujuvan toiminnan, minimoiden vierintävastuksen ja vähentäen huollon tarvetta. Keinuva rakenne kompensoi kiskon mahdolliset aksiaalipoikkeamat, suojaten rullia epätasaiselta kulumiselta.


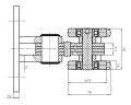
Ulkomitat

Teknisessä piirustuksessa esitetään kärryn keskeiset mitat, joiden avulla asennus porttikoteloon voidaan suunnitella tarkasti:
- Aluslevyn mitat: 150 × 300 mm
- Asennusreikien jako: 100 × 250 mm
- Asennusreiät: 4× M16
- Reikien reunaetäisyys: 35 mm
- Kokonaisleveys rullineen: 171 mm
- Kokonaiskorkeus (sivunäkymä): 298 mm
- Rullan akselin etäisyys aluslevyn reunasta: 75 mm

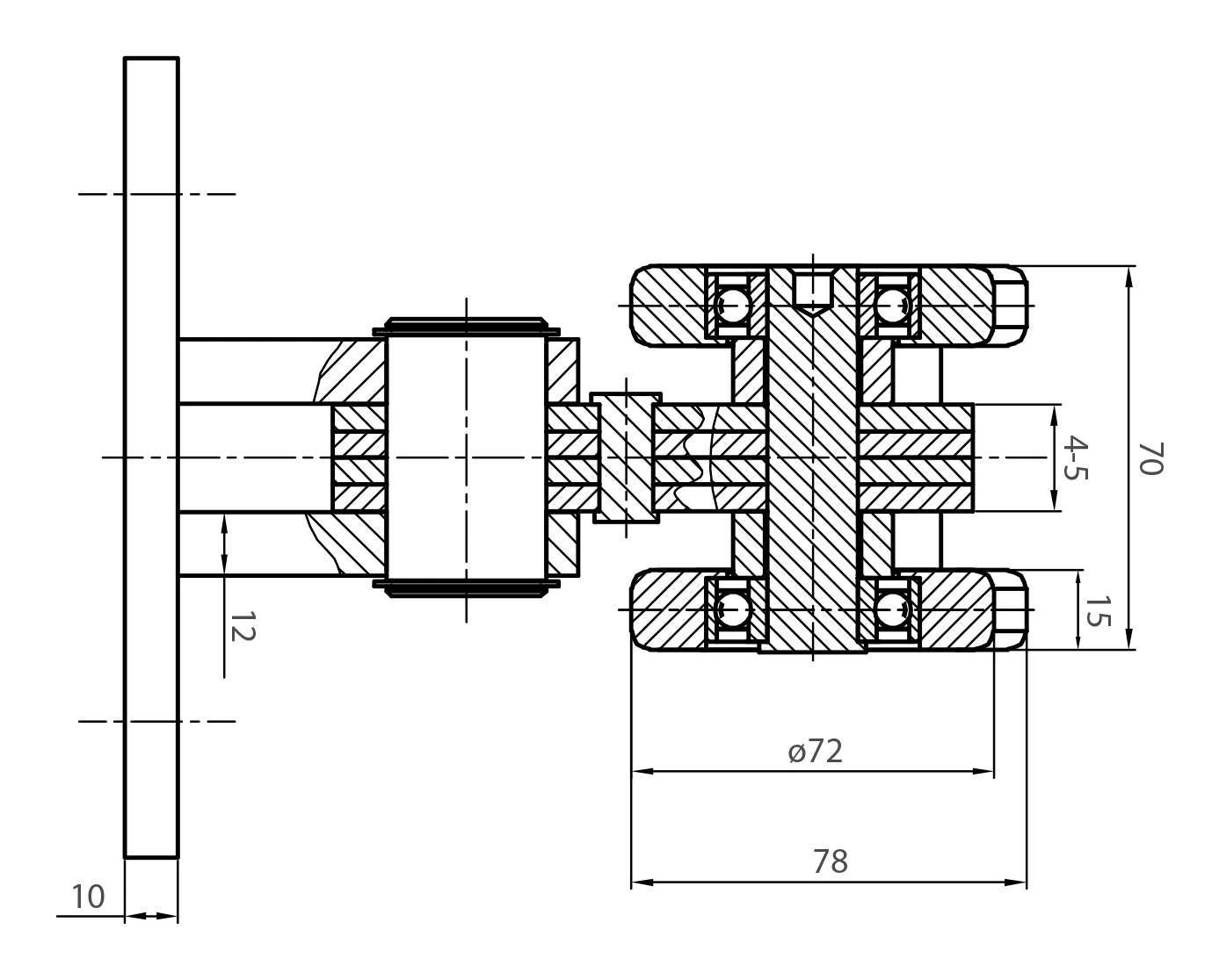
Rullien ja poikkileikkauksen parametrit
- Rullan halkaisija: ø72 mm
- Rullan leveys: 78 mm
- Rullakokonaisuuden korkeus: 70 mm
- Kiskon ohjausrako: 4–5 mm
- Aluslevyn paksuus: 10 mm
- Laakerin halkaisija: 12 mm
- Alapuolinen välys: 15 mm
- Tilavuus: 5243,44 cm³
- EAN: 5903313200240
Kärryt ovat asennusvalmis osakokonaisuus, joka on välittömästi käyttövalmis kiinnitettäessä portinkehykseen neljällä M16-pultilla. Vankan teräsrakenteen ja tarkasti valmistettujen laakerointien ansiosta tuote tarjoaa pitkäaikaisen, häiriöttömän käytön jopa intensiivisesti käytetyissä teollisuusporteissa.
Ładowanie tabeli porównawczej...
Ładowanie galerii...
Tekniset tiedot
| Maks. kantokyky [kg] | 350 |
| Liukukiskon koko | 100x89x5 |
| Tuotetyyppi | Yksittäinen vaunu |
| Rullien materiaali | Teräs |
| Rullien määrä [szt.] | 8 |
| Vaunun rakenne | Kääntyvä |
| Ajojärjestelmän tyyppi | Rullakulkujärjestelmä |
Turvallisuus
Kaikki arvostelut (positiiviset ja negatiiviset) näytetään alustan numerorajoituksen mukaisesti. Varmistamme, että ne ovat peräisin asiakkailta, jotka ovat ostaneet tuotteen. Katso lisää kommenttikäytännöt -sivultamme.