Kozza KB5100 – täydellinen ranskalainen alumiiniparveke H1100 mm, lasi 10–11,52 mm, himmeä anodisointi
tuote ei saatavilla
lisää toivelistalle
Kuvaus
Kozza KB5100 – täydellinen ranskalainen alumiiniparveke H1100 mm, lasi 10–11,52 mm, himmeä anodisointi

Ranskalainen parveke Kozza KB5100 on täydellinen alumiiniprofiilien sarja tasaisessa järjestelmässä, suunniteltu asennettavaksi suoraan ikkunakehykseen. Minimalistisen rakenteensa ja himmeän pintakäsittelyn (anodisointi) ansiosta se mahdollistaa asennusyrityksille nykyaikaisen, esteettisen turvallisuusratkaisun avoimelle ikkunalle — ilman tarvetta puuttua rakennuksen julkisivuun.
Järjestelmä käsittelee 10–11,52 mm paksuisia laseja ja maksimikokoja 1000 × 1100 mm (lev. × kork.). Suuri lasipinta-ala päästää sisään maksimaalisen määrän luonnonvaloa, ja testauksin vahvistettu tuulen- ja kuormankestävyys takaa pitkäaikaisen, turvallisen käytön.
Nopea asennus ilman komplikaatioita

Profiilit toimitetaan tarkasti esiporattuine reikine, mikä mahdollistaa asennusajan merkittävän lyhentämisen. Valmiit elementit poistavat tarpeen lisäporauksille ja käsittelylle työmaalla — riittävät tavanomaiset asennustyökalut.
Sarjan sisältö:
- 2 alumiiniprofiilia esiporattuine reikine
- 2 peitelistaa (peittävät listat)
- 1 lasitiiviste
- 2 päätytulppaa
- 2 välilevyä
Asennusohje — vaihe vaiheelta
Alla olevat kuvat esittävät sarjan kokoamisen vaiheet: komponenttien sijoittelusta, tiivisteen työntämisestä profiiliin (vihreät merkinnät näyttävät kiinnityskohtia), valmiiseen, koottuun sarjaan.



Tekniset tiedot
- Valmistaja: Kozza
- Sarja: KB5100
- Järjestelmä: tasainen
- Kiinnitys: ikkunaan
- Materiaali: anodisoitu alumiini
- Pintakäsittely: himmeä anodisointi
- Käsiteltävän lasin paksuus: 10–11,52 mm
- Lasin maksimileveys: 1000 mm
- Lasin maksimikorkeus (H): 1100 mm
- Profiilin korkeus: H + 15 mm (n. 1115 mm)
- Profiilin ylitys lasin yläpuolelta: 6,5 mm
- Profiilin ylitys lasin alapuolelta: 8,5 mm
- Sarjan paino: 4,8 kg
- EAN: 5903313207454
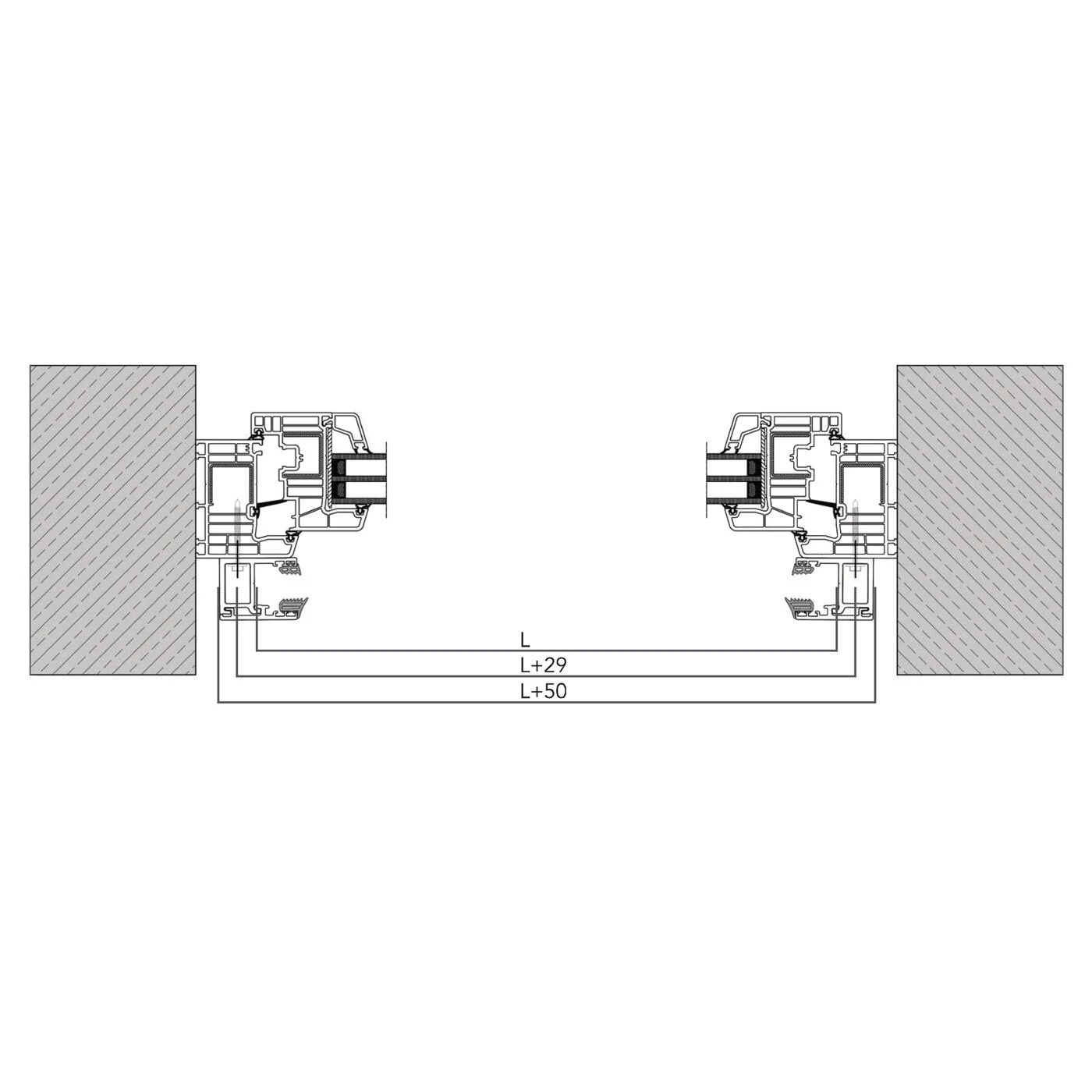
Asennusmitat

Alla olevassa poikkileikkauskuvassa näkyvät kolme lasin leveydestä (L) riippuvaa keskeistä mittaa:
- L — lasin leveys (etäisyys profiilien sisäreunujen välillä)
- L + 29 mm — kiinnitysruuvien akselijako
- L + 50 mm — profiilirakenteen kokonaisulkoleveys
Kiinnityskohtien sijoittelu (lasille H = 1100 mm)
Alla oleva taulukko esittää profiilin kiinnityskohtien väliset etäisyydet (alhaalta, segmentti A, ylös). Kaikki arvot millimetreinä:
| Lasin korkeus (H) | 1100 mm |
|---|---|
| A | 50 |
| B | 166 |
| C | 166 |
| D | 167 |
| E | 167 |
| F | 167 |
| G | 167 |
Asennuspoikkileikkaus — ikkunakiinnityksen yksityiskohta

Poikkileikkauskuva näyttää alumiiniprofiilin liitoksen yksityiskohdan ikkunakehyksen ja karmirakenteen kanssa. Profiili kiinnitetään suoraan ikkunaan — puuttumatta seinärakenteeseen. Järjestelmä varmistaa esteettisen viimeistelyn ulkopuolelta peitelistojen ja lasitiivisteen ansiosta.
Käyttötarkoitus
Ranskalainen parveke KB5100 soveltuu täydellisesti:
- Kerrostaloihin ylemmissä kerroksissa — turvaa avattavia parvekeikkunoita
- Nykyaikaisiin omakotitaloihin — minimalistisena julkisivuelementtinä
- Vanhojen rakennusten modernisointiin ja kunnostukseen — asennus ei puutu seinärakenteeseen
- Kaikkialla siellä, missä tärkeää on maksimaalinen sisätilojen valoisuus ilman perinteistä parveketta
Lopputulos — toteutukset


Himmeä, anodisoitu alumiini sopii harmonisesti sekä vaaleiden että tummien ikkunakehysten kanssa, antaen julkisivulle elegantin, nykyaikaisen luonteen.
Tekniset tiedot
| Materiaali | Alumiini |
Turvallisuus
Kaikki arvostelut (positiiviset ja negatiiviset) näytetään alustan numerorajoituksen mukaisesti. Varmistamme, että ne ovat peräisin asiakkailta, jotka ovat ostaneet tuotteen. Katso lisää kommenttikäytännöt -sivultamme.