Sähkölukkokasetit H=280 mm
tuote ei saatavilla
lisää toivelistalle
Kuvaus
Sähkölukon kasetti H=280 mm vastauslevyllä porttia varten
Sähkölukon kasetti H=280 mm on täydellinen asennussarja, joka on suunniteltu sähkölukon asentamiseen portin pylvääseen. Toimitukseen sisältyy vastauslevy, ja kasetti nopeuttaa merkittävästi kulunvalvontajärjestelmien asennusta — se poistaa tarpeen valmistaa lisäosia työmaalla.
Kasetti koostuu kahdesta toiminnallisesta osasta. Ensimmäiseen sijoitetaan sähkölukko omalla kiinnityksellään, toiseen lukitaan lukon salpa — mikä tehokkaasti estää portin luvattoman avaamisen. Rakenteessa on läpivientiaukko sähköasennusta varten, joten sähkölukon syöttöjohdon kytkentä tapahtuu kasetin sisällä, mikä takaa siistin ja turvallisen asennuksen.
Sisäänrakennetut kumivaimentajat vastauslevyn pinnalla vaimentavat tehokkaasti kineettistä energiaa porttia suljettaessa, suojaten sekä mekanismia että porttirakennetta vaurioilta. Kasetin päissä olevat kiinnitysreiät on tehdasvalmisteisesti tulpattu, mikä estää veden ja epäpuhtauksien pääsyn profiilin sisälle.

Tuote on ihanteellinen ratkaisu asennusyrityksille, jotka toteuttavat aita- ja porttiaennuksia kulunvalvontajärjestelmineen. Valmis sarja poistaa tarpeen valmistaa kotelot erikseen, lyhentää työn toteutusaikaa ja varmistaa toistettavan asennuslaadun.
Tekniset tiedot
- Kasetin korkeus: 280 mm
- Sarjan paino: 0,91 kg
- Materiaali: sinkitty teräs
- Varustelu: sähkölukon kasetti + vastauslevy
- Kumivaimentajat: sisäänrakennetut
- Sähköasennuksen läpivientiaukko: kyllä
- Tulpatut kiinnitysreiät: kyllä
- EAN: 5901289678605
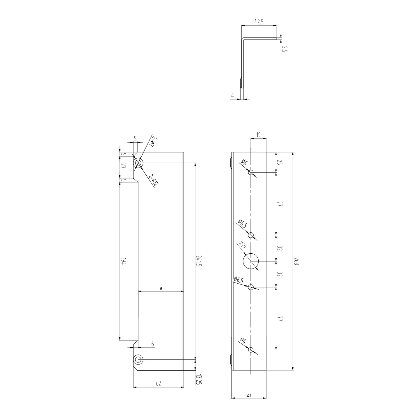
Kasetin mitat (vastauslevy)
- Kokonaispituus: 268 mm
- Leveys: 42,5 mm
- Levyn paksuus: 2,5 mm
- Keskiaukko: ø19 mm
- Kiinnitysreiät: ø6 mm ja ø6,5 mm
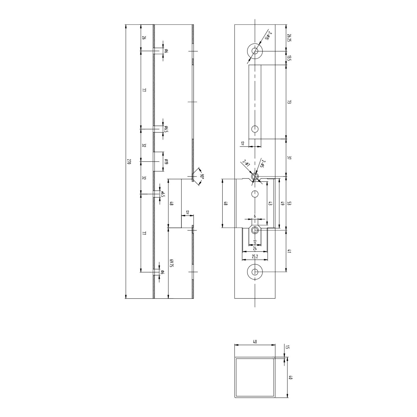
Kasetin mitat (sähkölukon profiili)
- Kokonaispituus: 270 mm
- Profiilin poikkileikkaus: 40 × 40 mm
- Profiilin seinämäpaksuus: 15 mm
- Keskiaukko: ø19 mm
- Kiinnitysreiät: ø6 mm ja ø6,5 mm


Ładowanie tabeli porównawczej...
Ładowanie galerii...
Tekniset tiedot
| Materiaali | Teräs |
| Pintakäsittely | Sähkösinkitys |
Turvallisuus
Kaikki arvostelut (positiiviset ja negatiiviset) näytetään alustan numerorajoituksen mukaisesti. Varmistamme, että ne ovat peräisin asiakkailta, jotka ovat ostaneet tuotteen. Katso lisää kommenttikäytännöt -sivultamme.